|
|
? |
941 331 40
|
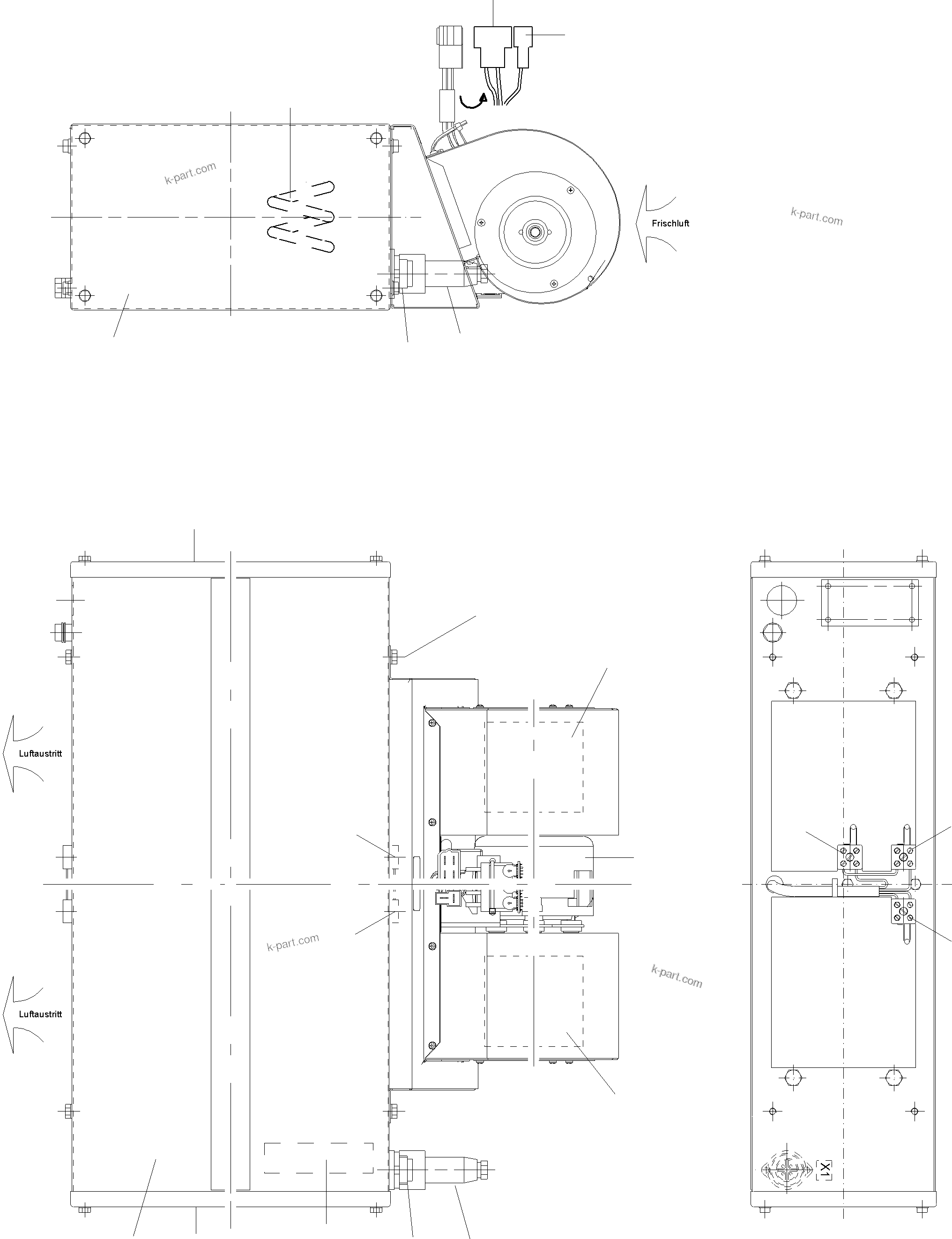
Electric heater |
1 |
InternBDB: TL Dreiha/Hornkohl u. Wolf 414.500.A 6KW-230V
|
|
|
|
? |
796 190 73
|
Heating unit (exist. of pos.03-10,14) |
-2 |
InternBDB: 008.501-69.A | InternKon: 414.500.A / 3
|
|
|
|
? |
769 519 73
|
Heating element assy. 230V (inclusive pos.04) |
1 |
InternBDB: 008.501-692000.A | InternKon: 414.500.A / 5
|
|
|
|
? |
769 520 73
|
Pipe radiator 115V /1000W |
6 |
InternBDB: 69-1429.A | InternKon: 414.500.A / 7
|
|
|
|
? |
797 191 73
|
Control plate 24V |
1 |
InternBDB: 69-1717.A | InternKon: 414.500.A / 9
|
|
|
|
? |
769 523 73
|
Sensor 60° |
2 |
InternBDB: 69-1235.A | InternKon: 414.500.A / 10
|
|
|
|
? |
769 522 73
|
Sensor 70° |
1 |
InternBDB: 69-1303.A | InternKon: 414.500.A / 11
|
|
|
|
? |
769 521 73
|
Sensor 100° |
2 |
InternBDB: 69-1236.A | InternKon: 414.500.A / 12
|
|
|
|
? |
796 191 73
|
Cap, left h. |
1 |
InternBDB: 006.501-6900001A | InternKon: 414.500.A / 13
|
|
|
|
? |
796 192 73
|
Cap, right h. |
1 |
InternBDB: 006.501-6900002A | InternKon: 414.500.A / 14
|
|
|
|
? |
796 281 73
|
Blower assy. 24V (incl. 11+12) |
1 |
InternBDB: 010.501-33.A | InternKon: 414.500.A / 16
|
|
|
|
? |
966 908
|
Impeller r.h. |
1 |
InternBDB: 74-0026 | InternKon: 414.500.A / 18
|
|
|
|
? |
966 909
|
Impeller l.h. |
1 |
InternBDB: 74-0027 | InternKon: 414.500.A / 19
|
|
|
|
? |
769 527 73
|
Plug 4-poles |
1 |
InternBDB: 69-1225 A /AMP C 16-1 T 3110 000 | InternKon: 414.500.A / 21
|
|
|
|
? |
796 193 73
|
Cable socket |
1 |
InternBDB: 69-1331.a
|
|
|
|
? |
307 727 99
|
Bolt |
4 |
InternBDB: M6x12 /933
|
|
|
|
? |
340 405 99
|
Lock washer |
4 |
InternBDB: 6 /128
|
|
|
|
? |
697 215 73
|
Tab |
1 |
InternBDB: AMP-Nr. 180901
|
|
|
|
? |
796 194 73
|
Tab |
1 |
InternBDB: AMP-Nr. 180908
|
|