|
|
? |
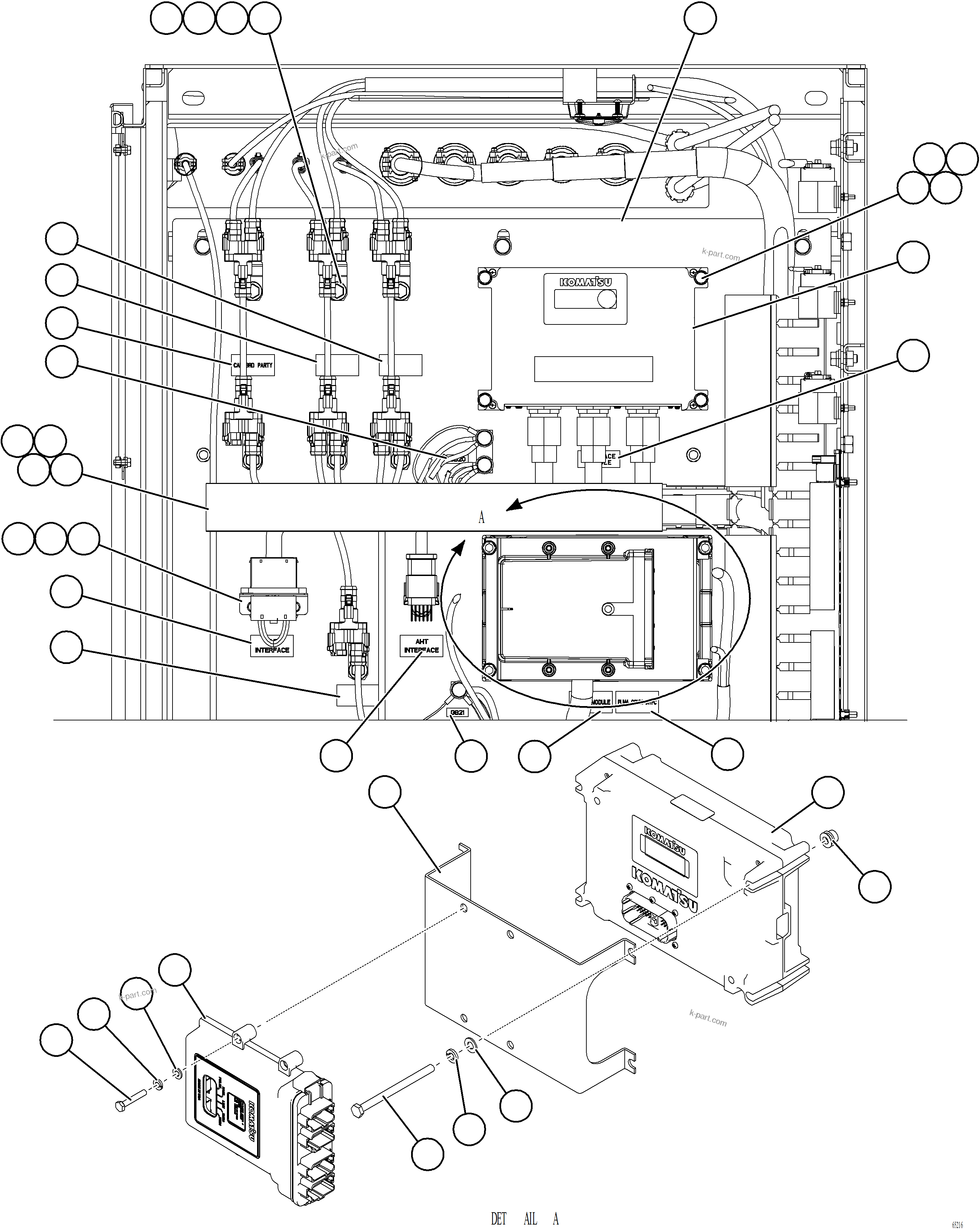
58E-06-18254
|
PLATE |
1 |
|
|
|
|
? |
MM0040
|
CAPSCREW - M6 X 1.00 X 35 |
4 |
|
|
|
|
? |
58F-06-50380
|
NUT, KNURLED - M8 X 1.25 |
8 |
|
|
|
|
? |
58E-06-18480
|
COVER, WIRE |
2 |
|
|
|
|
? |
58E-06-18390
|
DUCT, WIRE |
2 |
|
|
|
|
? |
58E-06-10360
|
SCREW, FLANGE - #10 - 24NC X 3/4" |
8 |
|
|
|
|
? |
58E-06-10350
|
NUT, RIBBED - #10 - 24NC |
8 |
|
|
|
|
? |
58E-06-40520
|
NAME PLATE - CAN |
1 |
|
|
|
|
? |
WB4010
|
NAME PLATE - CAN RPC |
2 |
|
|
|
|
? |
WB4009
|
NAME PLATE - CAN J1939 |
1 |
|
|
|
|
? |
58E-06-11160
|
PLATE, INTERFACE |
2 |
|
|
|
|
? |
58E-06-40530
|
NAME PLATE - PLM 4 |
1 |
|
|
|
|
? |
58E-06-40511
|
NAME PLATE |
1 |
|
|
|
|
? |
58E-06-11360
|
TAG, PLATE - GB21 |
1 |
|
|
|
|
? |
58E-06-11350
|
TAG, PLATE - GB20 |
1 |
|
|
|
|
? |
EK2723
|
NAME PLATE - INTERFACE MODULE |
1 |
|
|
|
|
? |
EJ9089
|
CONTROLLER, INTERFACE MODULE |
1 |
|
|
|
|
? |
MM0460
|
FLAT WASHER - M8 |
8 |
|
|
|
|
? |
MM0470
|
LOCKWASHER - M8 |
8 |
|
|
|
|
? |
MM0401
|
CAPSCREW - M8 X 1.25 X 90 |
4 |
|
|
|
|
? |
08193-21012
|
CLIP |
8 |
|
|
|
|
? |
58E-06-40310
|
SCREW, FLANGE - M10 X 1.50 X 20 |
8 |
|
|
|
|
? |
MM0471
|
LOCKWASHER - M10 |
17 |
|
|
|
|
? |
58E-06-40300
|
NUT, RIBBED - M10 X 1.50 |
8 |
|
|
|
|
? |
58E-06-00060
|
BRACKET |
1 |
|
|
|
|
? |
MM0459
|
FLAT WASHER - M6 |
6 |
|
|
|
|
? |
MM0581
|
CAPSCREW - M6 X 1.00 X 16 |
2 |
|
|
|
|
? |
58B-06-10010
|
CONTROLLER, PAYLOAD METER 4 |
1 |
|
|
|
|
? |
58E-06-08150
|
PLATE |
1 |
|
|
|
|
? |
58E-06-20350
|
CAPSCREW - M8 X 1.25 X 110 |
4 |
|
|
|
|
? |
58B-06-10400
|
COMMUNICATION INTERFACE, PAYLOAD METER 4 |
1 |
|
|
|
|
? |
MM0469
|
LOCKWASHER - M6 |
4 |
|
|