Find books across the catalog from one place.
This page is prepared as the search workspace. The search behavior itself can be connected in the next step.
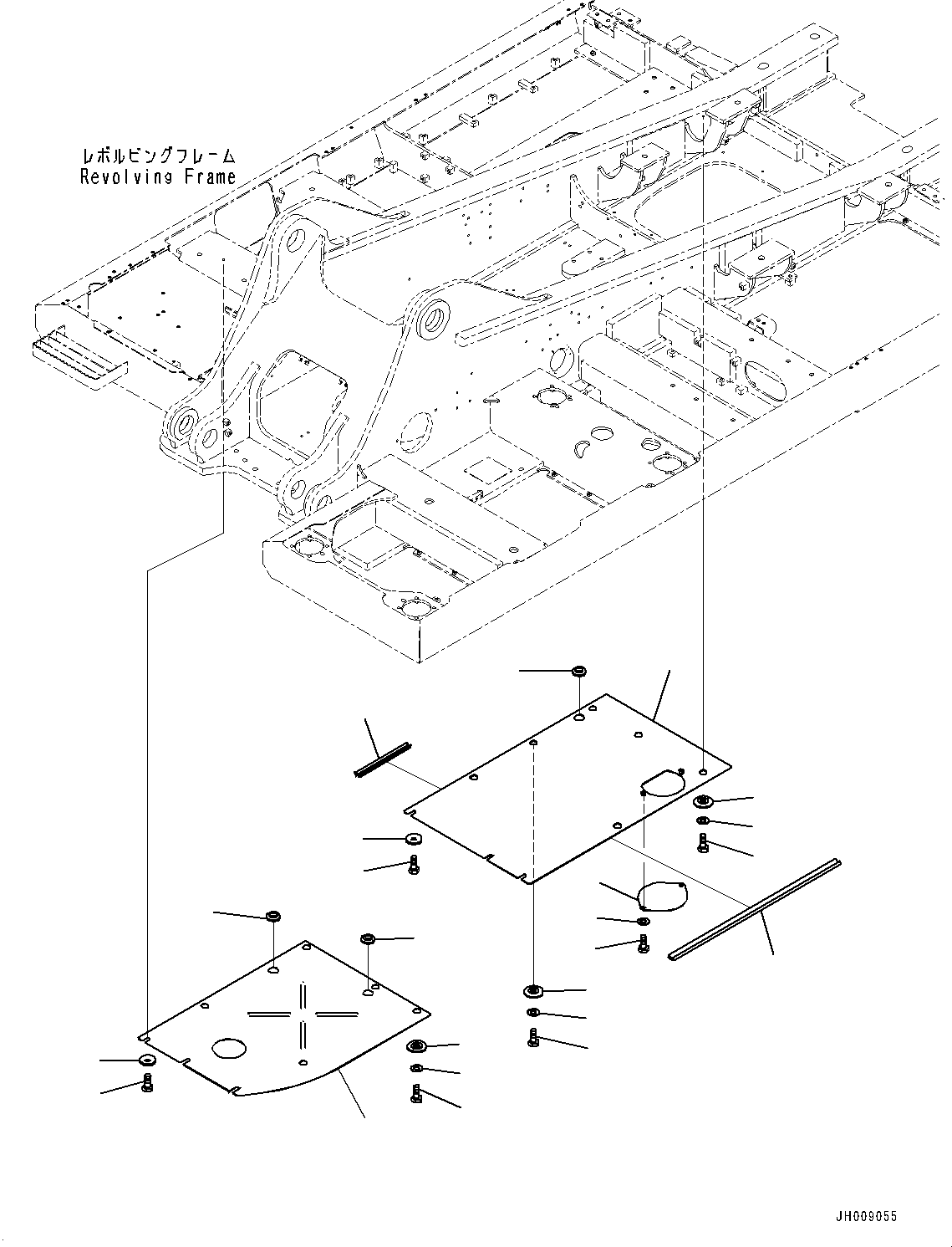
6212611203.UNDER COVER, (3/3) (EXTRA BAD FUEL AND POOR FUEL SPECIFICATION, WATER+DUST, ADDITIONAL FILTER)(#80001-) (M1810-030003) in PC300-8M2 S/N 80001-UP. Diagram image and parts list.
Test text. Dear users! Access to the special equipment catalogs is paid. You can review the service usage rules and tariffs on the page!