Search in all models by partnumber
Search current book

Komatsu AFE47-EF 730E S/N A30445 & A30446 ORAPA MINE parts catalog PDF

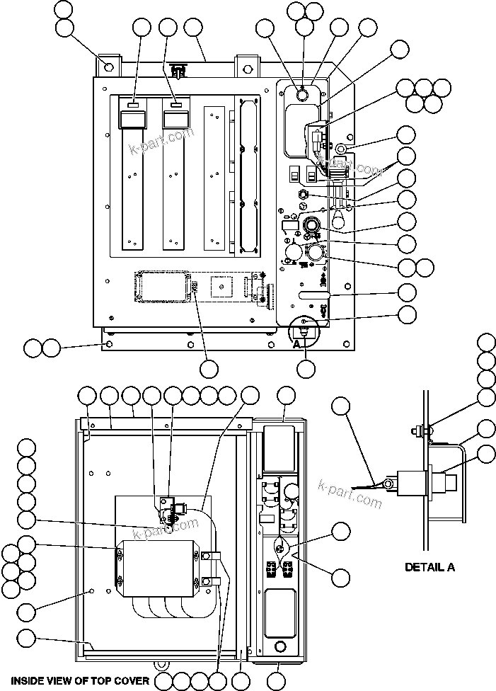
CAB INTERFACE COMPARTMENT (60267) in AFE47-EF 730E S/N A30445 & A30446 ORAPA MINE. Diagram image and parts list.

Model manual types and quick links