|
|
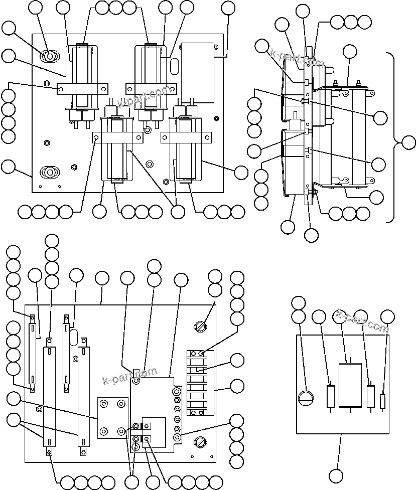
? |
VE4910
|
PANEL ASSEMBLY |
1 |
|
|
|
|
? |
VE5966
|
BASE |
1 |
|
|
|
|
? |
VE3847
|
CAPACITOR |
4 |
|
|
|
|
? |
VE5967
|
CLAMP |
4 |
|
|
|
|
? |
VE5968
|
GASKET |
4 |
|
|
|
|
? |
VE3035
|
CEMENT |
-1 |
|
|
|
|
? |
VS6823
|
RESISTOR - 50W, 100HM |
2 |
|
|
|
|
? |
VE6108
|
RESISTOR ASSEMBLY (SEE FIG 64075) |
2 |
|
64075 |
|
|
? |
VS7592
|
CHOKE |
1 |
|
|
|
|
? |
VS7514
|
BOARD, TERMINAL |
1 |
|
|
|
|
? |
VE4904
|
PLATE, INDICATOR |
1 |
|
|
|
|
? |
VE5969
|
ADAPTER |
2 |
|
|
|
|
? |
VS6820
|
MODULE |
1 |
|
|
|
|
? |
VS6990
|
RESISTOR - 1/2 WATT, 82 OHM |
1 |
|
|
|
|
? |
VS6996
|
RESISTOR - 1/2 WATT, 470 OHM |
1 |
|
|
|
|
? |
VE2616
|
DIODE |
1 |
|
|
|
|
? |
VS7210
|
CAPACITOR - 2 MFD, 50 VOLT |
1 |
|
|
|
|
? |
VS7214
|
DIODE |
1 |
|
|
|
|
? |
VS6610
|
TRANSIPAD |
1 |
|
|
|
|
? |
VS7214
|
DIODE |
1 |
|
|
|
|
? |
VS6610
|
TRANSIPAD |
1 |
|
|
|
|
? |
VE5971
|
FLAT WASHER |
4 |
|
|
|
|
? |
VE5156
|
MACHINE SCREW - #10 - 32NF X 7/8" |
1 |
|
|
|
|
? |
VE5972
|
SCREW, CAPTIVE |
2 |
|
|
|
|
? |
VS7484
|
WASHER, RETAINING |
2 |
|
|
|
|
? |
VE4386
|
GASKET |
4 |
|
|
|
|
? |
VP9597
|
MACHINE SCREW - #6 - 40NF X 5/8" |
2 |
|
|
|
|
? |
VE5756
|
FLAT WASHER - #6 |
4 |
|
|
|
|
? |
TR5445
|
LOCKWASHER - 1/2" |
4 |
|
|
|
|
? |
VE5959
|
NUT |
4 |
|
|
|
|
? |
VJ6586
|
MACHINE SCREW - #10 - 32NF X 3/4" |
5 |
|
|
|
|
? |
VE4921
|
MACHINE SCREW - #10 - 32NF X 1" |
4 |
|
|
|
|
? |
VS6662
|
FLAT WASHER - #10 |
-1 |
|
|
|
|
? |
DC3101
|
LOCKWASHER - #10 |
-1 |
|
|
|
|
? |
SF2755
|
NUT |
21 |
|
|
|
|
? |
VE4916
|
MACHINE SCREW - #10 - 32NF X 1/2" |
6 |
|
|
|
|
? |
VS7373
|
MODULE |
1 |
|
|
|
|
? |
VJ6586
|
MACHINE SCREW - #10 - 32NF X 3/4" |
8 |
|
|
|
|
? |
VE5976
|
MACHINE SCREW - #6 - 40NF X 7/8" |
2 |
|
|