|
|
1 |
TD1548
|
CAPSCREW - 1/4" - 20NC X 5/8" |
4 |
|
|
|
|
2 |
SP8417
|
FLAT WASHER - 1/4" |
4 |
|
|
|
|
3 |
DC3584
|
LOCKWASHER - 1/4" |
4 |
|
|
|
|
4 |
EL4788
|
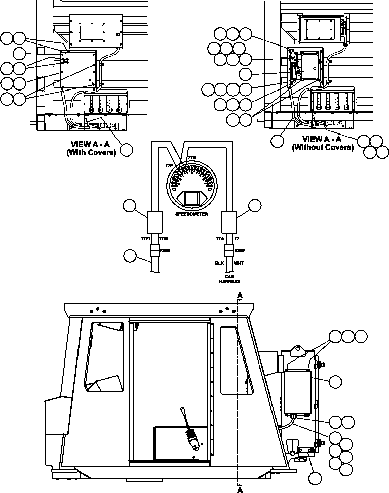
BOX, JUNCTION (SEE INDEX) |
1 |
|
55739 |
|
|
5 |
WB0983
|
GRIP, CORD |
1 |
|
|
|
|
6 |
VZ2691
|
LOCKNUT, CONDULET - 1 1/4" |
1 |
|
|
|
|
7 |
EK7638
|
HARNESS, CAB/JUNCTION BOX |
1 |
|
|
|
|
8 |
TC1565
|
CLAMP, VINYL - 15/16" |
5 |
|
|
|
|
9 |
VN9907
|
CLAMP, VINYL - 5/8" |
3 |
|
|
|
|
10 |
MM0461
|
FLAT WASHER - M10 |
3 |
|
|
|
|
11 |
MM0471
|
LOCKWASHER - M10 |
3 |
|
|
|
|
12 |
MM0178
|
NUT - M10 X 1.50 |
3 |
|
|
|
|
13 |
WA5460
|
CLAMP, HEAVY DUTY |
1 |
|
|
|
|
14 |
EJ4037
|
COVER, PLATE CONNECTOR HOLE |
1 |
|
|
|
|
15 |
PB9829
|
SCREW, PAN - M6 X 1.00 X 16 |
12 |
|
|
|
|
16 |
SM6073
|
PLATE, CONNECTOR |
1 |
|
|
|
|
17 |
SM6068
|
PLATE, MOUNTING |
1 |
|
|
|
|
18 |
SM6066
|
COVER, BENT PLATE |
1 |
|
|
|
|
19 |
|
(NOT USED THIS APPLICATION) |
-1 |
|
|
|
|
20 |
MM0580
|
CAPSCREW - M6 X 1.00 X 14 |
3 |
|
|
|
|
21 |
MM0016
|
CAPSCREW - M8 X 1.25 X 16 |
2 |
|
|
|
|
22 |
MM0460
|
FLAT WASHER - M8 |
2 |
|
|
|
|
23 |
PB9862
|
CAP, PROTECTIVE METAL |
1 |
|
|
|
|
24 |
SM2117
|
PLATE, NUT CONNECTOR |
1 |
|
|
|
|
25 |
WA5641
|
SCREW, MACHINE - #4 - 40NC X 3/8" |
4 |
|
|
|
|
26 |
SF0542
|
SCREW, MACHINE - #4 - 40NC X 5/16" |
1 |
|
|
|
|
27 |
VD7129
|
LOCKWASHER - #4 |
1 |
|
|
|
|
28 |
VN9717
|
NUT - #4 - 40NC |
1 |
|
|
|
|
29 |
EJ3060
|
PAYLOAD METER III ASSEMBLY |
1 |
|
|
|
|
30 |
VC8762
|
CAPSCREW - 3/8" - 16NC X 1 1/2" |
4 |
|
|
|
|
31 |
TR4436
|
FLAT WASHER - 3/8" |
4 |
|
|
|
|
32 |
TC1231
|
LOCKWASHER - 3/8" |
4 |
|
|
|
|
33 |
SM5049
|
NUT, SPRING - 3/8" - 16NC |
4 |
|
|
|
|
34 |
MM0401
|
CAPSCREW - M8 X 1.25 X 90 |
4 |
|
|
|
|
35 |
MM0703
|
FLAT WASHER - M8 |
4 |
|
|
|
|
36 |
VZ1368
|
GRIP, CORD |
1 |
|
|
|
|
37 |
EJ4036
|
ADAPTER |
1 |
|
|
|
|
38 |
SM0724
|
GASKET |
1 |
|
|
|
|
39 |
WA5643
|
SCREW, MACHINE |
4 |
|
|
|
|
40 |
EJ9252
|
ADAPTER, SPEEDOMETER/CAB HARNESS |
1 |
|
|
|
|
41 |
EK7639
|
ATTENUATOR ASSEMBLY |
1 |
|
|