|
|
1 |
EG0619
|
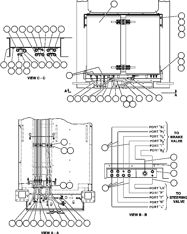
BRAKE CABINET ASSEMBLY (SEE INDEX) (1) |
1 |
|
60004 |
|
|
2 |
MM0620
|
CAPSCREW - M12 X 1.75 X 40 |
4 |
|
|
|
|
3 |
MM0472
|
LOCKWASHER - M12 |
12 |
|
|
|
|
4 |
MM0179
|
NUT - M12 X 1.75 |
4 |
|
|
|
|
5 |
SM2014
|
CAP |
2 |
|
|
|
|
6 |
MM0623
|
CAPSCREW - M12 X 1.75 X 60 |
4 |
|
|
|
|
7 |
MM0472
|
LOCKWASHER - M12 |
4 |
|
|
|
|
8 |
HA6397
|
HOSE |
2 |
|
|
|
|
9 |
HA6173
|
HOSE |
2 |
|
|
|
|
10 |
HA5553
|
HOSE |
1 |
|
|
|
|
11 |
WB0386
|
FITTING, TEE |
1 |
|
|
|
|
12 |
HA7386
|
HOSE |
1 |
|
|
|
|
13 |
EF9801
|
FLAP, RUBBER |
1 |
|
|
|
|
14 |
MM0470
|
LOCKWASHER - M8 |
4 |
|
|
|
|
15 |
MM0460
|
FLAT WASHER - M8 |
3 |
|
|
|
|
16 |
MM0177
|
NUT - M8 X 1.25 |
3 |
|
|
|
|
17 |
HA7358
|
HOSE - TO PORT "LS" (STEERING) |
1 |
|
|
|
|
18 |
WB0384
|
FITTING, TEE |
3 |
|
|
|
|
19 |
MM0605
|
CAPSCREW - M10 X 1.50 X 25 |
9 |
|
|
|
|
20 |
MM0471
|
LOCKWASHER - M10 |
15 |
|
|
|
|
21 |
EF8174
|
CLAMP |
2 |
|
|
|
|
22 |
WB0430
|
FITTING, BULKHEAD |
8 |
|
|
|
|
23 |
EF8177
|
BRACKET |
1 |
|
|
|
|
24 |
WB0432
|
FITTING, BULKHEAD |
1 |
|
|
|
|
25 |
WB0427
|
FITTING, BULKHEAD |
2 |
|
|
|
|
26 |
HA7331
|
HOSE - TO PORT "B2" (BRAKE) |
1 |
|
|
|
|
27 |
HA7389
|
HOSE - TO PORT "T" (BRAKE) |
1 |
|
|
|
|
28 |
HA5569
|
HOSE - TO PORT "P" (STEERING) |
1 |
|
|
|
|
29 |
HA7331
|
HOSE - TO PORT "P2" (BRAKE) |
1 |
|
|
|
|
30 |
HA7382
|
HOSE - TO PORT "T" (STEERING) |
1 |
|
|
|
|
31 |
HA7360
|
HOSE - TO PORT "PX" (BRAKE) |
1 |
|
|
|
|
32 |
HA7331
|
HOSE - TO PORT "P1" (BRAKE) |
1 |
|
|
|
|
33 |
HA7331
|
HOSE - TO PORT "B1" (BRAKE) |
1 |
|
|
|
|
34 |
HA7382
|
HOSE - TO PORT "L" (STEERING) |
1 |
|
|
|
|
35 |
HA5569
|
HOSE - TO PORT "R" (STEERING) |
1 |
|
|
|
|
36 |
TG2568
|
CLAMP |
8 |
|
|
|
|
37 |
VN9913
|
CLAMP |
2 |
|
|
|
|
38 |
TY8375
|
SPACER |
6 |
|
|
|
|
39 |
MM0461
|
FLAT WASHER - M10 |
6 |
|
|
|
|
40 |
MM0178
|
NUT - M10 X 1.50 |
6 |
|
|
|
|
41 |
TG2960
|
CLAMP |
3 |
|
|
|
|
42 |
MM0714
|
FLAT WASHER - M12 (HARDENED) |
4 |
|
|
|
|
43 |
HA6580
|
HOSE |
1 |
|
|
|
|
44 |
HA7425
|
HOSE |
1 |
|
|
|
|
NS|45 |
|
NOTE: (1) EG0619 BRAKE CABINET ASSEMBLY NOT |
-1 |
|
|
|
|
NS|46 |
|
SERVICED AS AN ASSEMBLY - ORDER |
-1 |
|
|
|
|
NS|47 |
|
INDIVIDUAL COMPONENT PARTS. |
-1 |
|
|