Search in all models by partnumber
Search current book

Komatsu AFE48-AL 930E S/N A30111 MORENCI parts catalog PDF

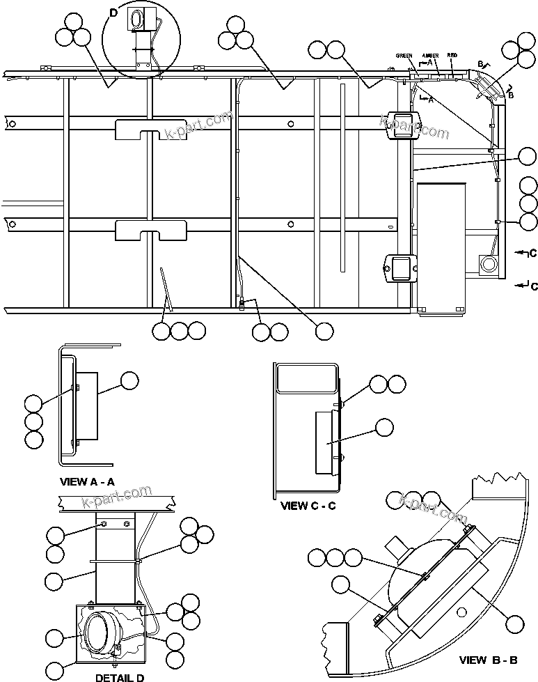
RIGHT DECK ELECTRICAL GROUP (60229) in AFE48-AL 930E S/N A30111 MORENCI. Diagram image and parts list.

Model manual types and quick links