Search in all models by partnumber
Search current book

Komatsu AFE50-CK 830E S/N A30825 APPALACHIAN FUEL parts catalog PDF

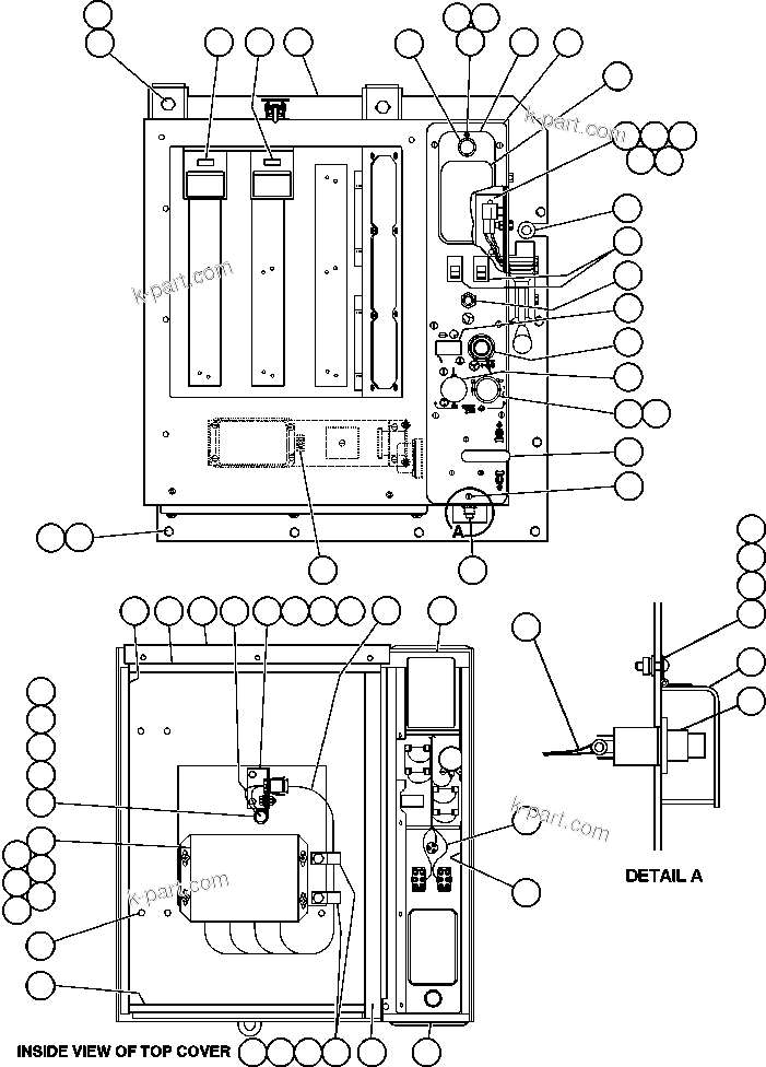
CAB INTERFACE COMPARTMENT (60267) in AFE50-CK 830E S/N A30825 APPALACHIAN FUEL. Diagram image and parts list.

Model manual types and quick links