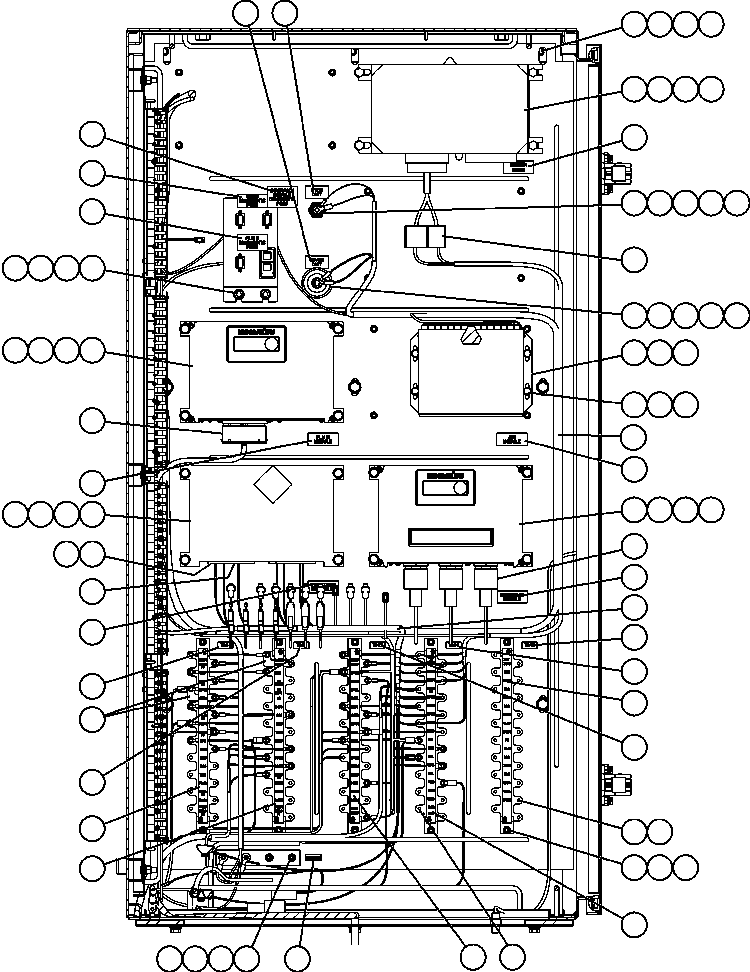
1
EK0742
BRACKET
1
2
MM0177
NUT - M8 X 1.25
2
3
MM0470
LOCKWASHER - M8
18
4
MM0460
FLAT WASHER - M8
18
5
EL0309
BRACKET, MOUNTING
1
6
TC1234
CAPSCREW - 3/8" - 16NC X 3/4"
9
7
TC1231
LOCKWASHER - 3/8"
9
8
TR4436
FLAT WASHER - 3/8"
9
9
PC1810
A.I.D. MODULE
1
9
VE3422
BOX (W/O CARDS)
1
9
BF1539
CHASSIS ASSEMBLY
1
9
BF1540
CARD CAGE ASSEMBLY
1
9
BF1541
MOTHERBOARD ASSEMBLY
1
9
BF1542
FRONT PANEL ASSEMBLY
1
9
VE1407
KNOB
1
9
BF1552
RING, RETAINING
1
9
VJ8805
CARD, FLASHER/COOLANT LEVEL
1
9
VJ9023
CARD, DIODE (W/ SOUND)
1
9
VJ9024
CARD, DIODE (W/O SOUND)
1
9
PB5672
CARD, SINGLE TEMPERATURE LATCH
1
10
PC0040
CARD, OIL LEVEL/TEMPERATURE
1
11
VJ9025
CARD, DUAL HOT SWITCH INVERTER
1
12
MM0459
FLAT WASHER - M6
18
13
MM0019
CAPSCREW - M6 X 1.00 X 16
4
14
MM0469
LOCKWASHER - M6
8
15
EK3933
NAME PLATE - AID
1
16
EK0735
NAME PLATE - TB41
1
17
EK0736
NAME PLATE - TB42
1
18
EK0737
NAME PLATE - TB43
1
19
EK0738
NAME PLATE - TB44
1
20
EK0739
NAME PLATE - TB45
1
21
EL7630
NAME PLATE - GB33
1
22
PB5732
BOARD, TERMINAL
5
23
MM0373
NUT - M5 X 0.8
10
24
MM0379
LOCKWASHER - M5 (EXTERNAL TOOTH)
10
25
WA3367
NUT ASSEMBLY
100
26
VM2951
SCREW, SELF-TAPPING - #6 - 32NC X 5/16"
8
27
WB1272
STRIP, CIRCUIT I.D.
1
28
WB1273
STRIP, CIRCUIT I.D.
1
29
WB3236
STRIP, CIRCUIT I.D.
1
30
WB3250
STRIP, CIRCUIT I.D.
1
31
EB7418
BUS BAR
2
32
EK0731
ROD, THREADED - M6
4
33
MM0176
NUT - M6 X 1.00
4
34
MM0594
CAPSCREW - M8 X 1.25 X 25
4
35
78261-22302
CONTROLLER, ORBCOMM
1
36
MM0401
CAPSCREW - M8 X 1.25 X 90
12
37
EJ9089
INTERFACE MODULE (IM) ASSEMBLY (UNPROGRAMMED)
1
38
78261-48501
CONTROLLER, VHMS
1
39
EJ3060
PAYLOAD METER III ASSEMBLY
1
40
EK7548
HARNESS, ORBCOMM
1
41
TA7409
INSULATOR, STAND-OFF
1
42
ED0913
ROD, THREADED - 1/4"
1
43
TD1549
NUT - 1/4" - 20NC
1
44
DC3584
LOCKWASHER - 1/4"
2
45
TR1307
FLAT WASHER - 1/4"
2
46
PB7202
INSULATOR
1
47
ED7468
ROD, THREADED - 5/16"
1
48
SC4174
LOCKWASHER - 5/16"
2
49
TD1684
NUT - 5/16" - 18NC
1
50
TV0177
FLAT WASHER - 5/16"
2
51
EM2772
HARNESS, INTERFACE MODULE CONNECTOR
1
51
421-06-11970
DIODE - 3 AMP
23
51
EK9233
VARISTOR
7
51
TS0299
RESISTOR 2K OHM
1
51
EK4129
RESISTOR 750 OHM
1
52
EJ6371
CONNECTOR ASSEMBLY - CNB2
1
53
EK7547
HARNESS, VHMS
1
54
EJ6372
CONNECTOR ASSEMBLY - CN1-6
1
55
EM5633
HARNESS, PLM III/AUXILIARY BOX
1
56
WB2879
NAME PLATE - ORBCOMM MODEM
1
57
EK6252
NAME PLATE - 5 VDC DIST
1
58
EK6251
NAME PLATE - 18 VDC DIST
1
59
EK6255
NAME PLATE - INTERFACE MODULE DIAGNOSTIC PORT
1
60
EK6257
NAME PLATE - VHMS DIAGNOSTIC PORT
1
61
EK6256
NAME PLATE - PLM III DIAGNOSTIC PORT
1
62
EK3934
NAME PLATE - PLM III
1
63
WB2838
NAME PLATE - VHMS COMMON CONTROLLER
1
64
EK2723
NAME PLATE - INTERFACE MODULE
1
65
EL5808
HARNESS, CAB/AUXILIARY BOX DIAGNOSTIC
1
66
WB3357
STRIP, CIRCUIT ID TB45
1
67
78261-23410
HARNESS
1