Search in all models by partnumber
Search current book

Komatsu AFE57-AQ 830E-1AC S/N A30174-A30176 & A30183 - A30185 HUNTER VALLEY parts catalog PDF

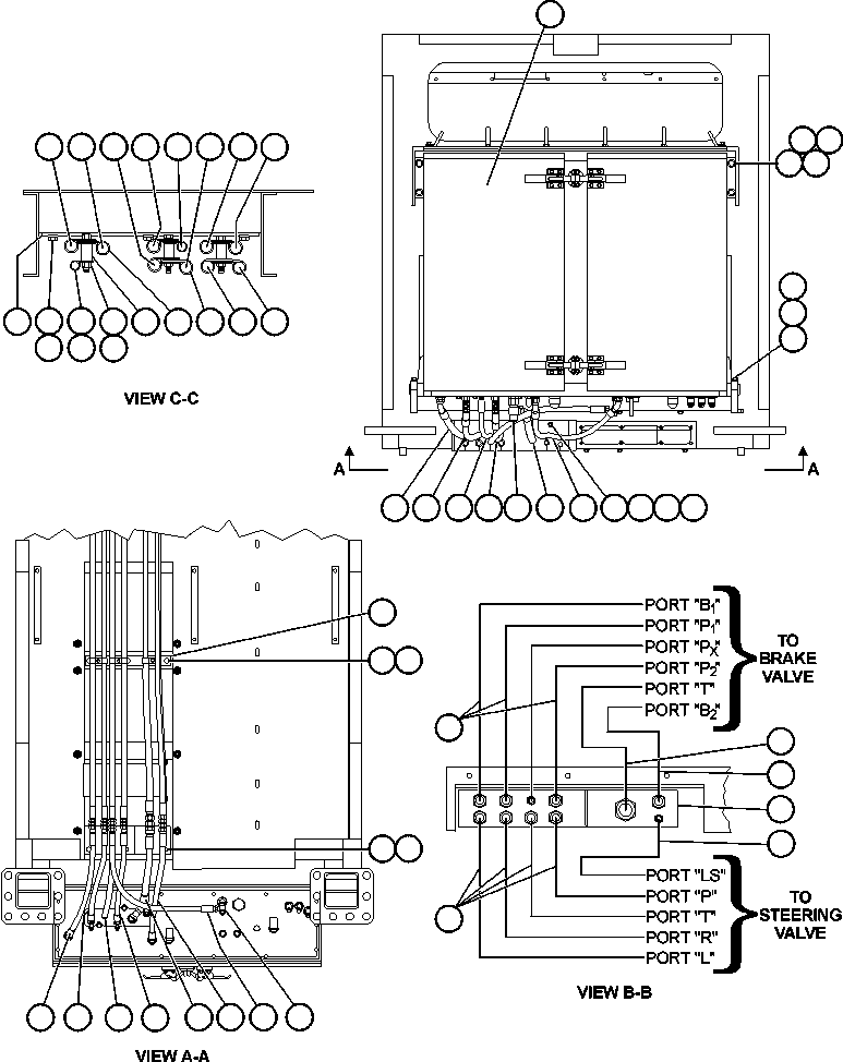
BRAKE CABINET/CAB PIPING (41476) in AFE57-AQ 830E-1AC S/N A30174-A30176 & A30183 - A30185 HUNTER VALLEY. Diagram image and parts list.

Model manual types and quick links