|
|
? |
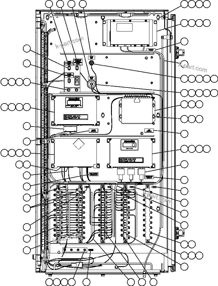
EK0742
|
BRACKET |
1 |
|
|
|
|
? |
MM0177
|
NUT - M8 X 1.25 |
2 |
|
|
|
|
? |
MM0470
|
LOCKWASHER - M8 |
18 |
|
|
|
|
? |
MM0460
|
FLAT WASHER - M8 |
18 |
|
|
|
|
? |
EL0309
|
BRACKET, MOUNTING |
1 |
|
|
|
|
? |
TC1234
|
CAPSCREW - 3/8" - 16NC X 3/4" |
8 |
|
|
|
|
? |
TC1231
|
LOCKWASHER - 3/8" |
8 |
|
|
|
|
? |
TR4436
|
FLAT WASHER - 3/8" |
8 |
|
|
|
|
? |
PC1810
|
A.I.D. MODULE |
1 |
|
|
|
|
? |
VE3422
|
BOX (W/O CARDS) |
1 |
|
|
|
|
? |
BF1539
|
CHASSIS ASSEMBLY |
1 |
|
|
|
|
? |
BF1540
|
CARD CAGE ASSEMBLY |
1 |
|
|
|
|
? |
BF1541
|
MOTHERBOARD ASSEMBLY |
1 |
|
|
|
|
? |
BF1542
|
FRONT PANEL ASSEMBLY |
1 |
|
|
|
|
? |
VE1407
|
KNOB |
1 |
|
|
|
|
? |
BF1552
|
RING, RETAINING |
1 |
|
|
|
|
? |
VJ8805
|
CARD, FLASHER/COOLANT LEVEL |
1 |
|
|
|
|
? |
VJ9023
|
CARD, DIODE (W/ SOUND) |
1 |
|
|
|
|
? |
VJ9024
|
CARD, DIODE (W/O SOUND) |
1 |
|
|
|
|
? |
PB5672
|
CARD, SINGLE TEMPERATURE LATCH |
1 |
|
|
|
|
? |
PC0040
|
CARD, OIL LEVEL/TEMPERATURE |
1 |
|
|
|
|
? |
VJ9025
|
CARD, DUAL HOT SWITCH INVERTER |
1 |
|
|
|
|
? |
MM0459
|
FLAT WASHER - M6 |
18 |
|
|
|
|
? |
MM0019
|
CAPSCREW - M6 X 1.00 X 16 |
4 |
|
|
|
|
? |
MM0469
|
LOCKWASHER - M6 |
8 |
|
|
|
|
? |
EK3933
|
NAME PLATE - AID |
1 |
|
|
|
|
? |
EK0735
|
NAME PLATE - TB41 |
1 |
|
|
|
|
? |
EK0736
|
NAME PLATE - TB42 |
1 |
|
|
|
|
? |
EK0737
|
NAME PLATE - TB43 |
1 |
|
|
|
|
? |
EK0738
|
NAME PLATE - TB44 |
1 |
|
|
|
|
? |
EK0739
|
NAME PLATE - TB45 |
1 |
|
|
|
|
? |
EL7630
|
NAME PLATE - GB33 |
1 |
|
|
|
|
? |
PB5732
|
BOARD, TERMINAL |
5 |
|
|
|
|
? |
MM0373
|
NUT - M5 X .8 |
10 |
|
|
|
|
? |
MM0379
|
LOCKWASHER - M5 (EXTERNAL TOOTH) |
10 |
|
|
|
|
? |
WA3367
|
NUT ASSEMBLY |
100 |
|
|
|
|
? |
VM2951
|
SCREW, SELF-TAPPING - #6 - 32NC X 5/16" |
8 |
|
|
|
|
? |
WB1272
|
STRIP, CIRCUIT ID |
1 |
|
|
|
|
? |
WB1273
|
STRIP, CIRCUIT ID |
1 |
|
|
|
|
? |
WB3236
|
STRIP, CIRCUIT ID |
1 |
|
|
|
|
? |
WB3250
|
STRIP, CIRCUIT ID |
1 |
|
|
|
|
? |
EB7418
|
BAR, BUS |
2 |
|
|
|
|
? |
EK0731
|
ROD, THREADED - M6 |
4 |
|
|
|
|
? |
MM0176
|
NUT, HEX - M6 X 1.00 |
4 |
|
|
|
|
? |
MM0594
|
CAPSCREW - M8 X 1.25 X 25 |
4 |
|
|
|
|
? |
78261-22301
|
CONTROLLER, ORBCOMM |
1 |
|
|
|
|
? |
MM0401
|
CAPSCREW - M8 X 1.25 X 90 |
12 |
|
|
|
|
? |
EJ9089
|
INTERFACE MODULE (UNPROGRAMMED) |
1 |
|
|
|
|
? |
78261-74000
|
CONTROLLER, VHMS |
1 |
|
|
|
|
? |
EJ3060
|
PAYLOAD METER III ASSEMBLY |
1 |
|
|
|
|
? |
78261-23410
|
HARNESS, ORBCOMM |
1 |
|
|
|
|
? |
TA7409
|
INSULATOR, STAND-OFF |
1 |
|
|
|
|
? |
ED0913
|
ROD, THREADED - 1/4" |
1 |
|
|
|
|
? |
TD1549
|
NUT - 1/4" - 20NC |
1 |
|
|
|
|
? |
DC3584
|
LOCKWASHER - 1/4" |
2 |
|
|
|
|
? |
TR1307
|
FLAT WASHER - 1/4" |
2 |
|
|
|
|
? |
PB7202
|
INSULATOR |
1 |
|
|
|
|
? |
ED7468
|
ROD, THREADED - 5/16" |
1 |
|
|
|
|
? |
SC4174
|
LOCKWASHER - 5/16" |
2 |
|
|
|
|
? |
TD1684
|
NUT - 5/16" - 18NC |
1 |
|
|
|
|
? |
TV0177
|
FLAT WASHER - 5/16" |
2 |
|
|
|
|
? |
EK7550
|
HARNESS, INTERFACE MODULE CONNECTOR |
1 |
|
|
|
|
? |
EJ6371
|
CONNECTOR ASSEMBLY - CNB2 |
1 |
|
|
|
|
? |
EK7547
|
HARNESS, VHMS |
1 |
|
|
|
|
? |
EK5337
|
CONNECTOR ASSEMBLY - CNI-6 |
1 |
|
|
|
|
? |
EK7549
|
HARNESS, PLM III/AUXILIARY BOX |
1 |
|
|
|
|
? |
WB2879
|
NAME PLATE - ORBCOMM MODEM |
1 |
|
|
|
|
? |
EK6252
|
NAME PLATE - 5VDC DIST |
1 |
|
|
|
|
? |
EK6251
|
NAME PLATE - 18VDC DIST |
1 |
|
|
|
|
? |
EK6255
|
NAME PLATE - INTERFACE MODULE DIAGNOSTIC PORT |
1 |
|
|
|
|
? |
EK6257
|
NAME PLATE - VHMS DIAGNOSTIC PORT |
1 |
|
|
|
|
? |
EK6256
|
NAME PLATE - PLM III DIAGNOSTIC PORT |
1 |
|
|
|
|
? |
EK3934
|
NAME PLATE - PLM III |
1 |
|
|
|
|
? |
WB2838
|
NAME PLATE - VHMS COMMON CONTROLLER |
1 |
|
|
|
|
? |
EK2723
|
NAME PLATE - INTERFACE MODULE |
1 |
|
|
|
|
? |
EL2215
|
HARNESS, CAB/AUXILIARY BOX - DIAGNOSTIC |
1 |
|
|
|
|
? |
EK7546
|
HARNESS, AUX BOX INTERNAL |
1 |
|
|
|
|
? |
PB8256
|
SCREWLOCK, FEMALE |
3 |
|
|