|
|
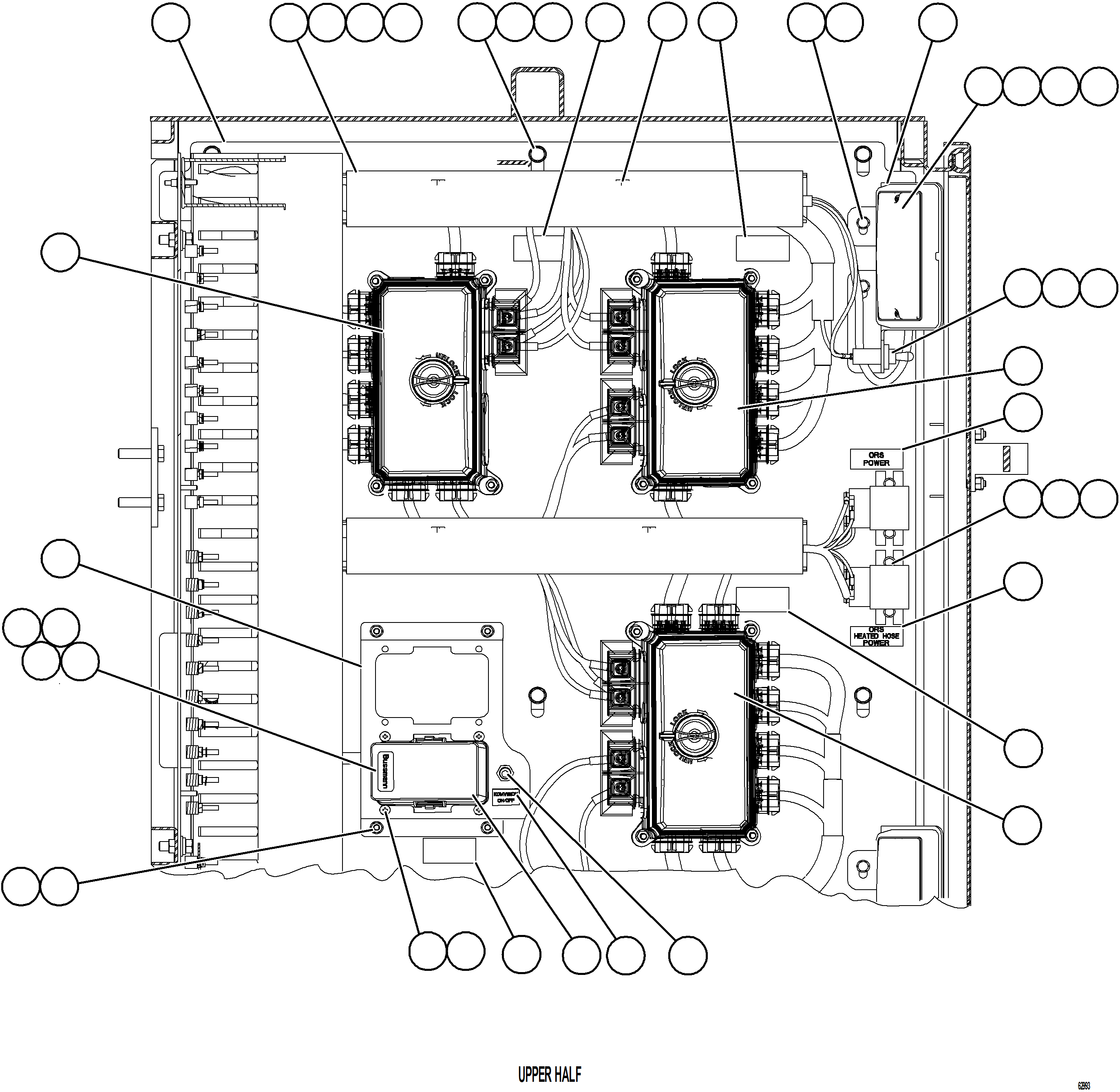
1 |
58E-06-00235
|
PLATE |
1 |
|
|
|
|
2 |
58E-06-00410
|
COVER, WIRING |
2 |
|
|
|
|
3 |
58E-06-00390
|
DUCT, WIRE |
2 |
|
|
|
|
4 |
58E-06-10360
|
SCREW, FLANGE - #10 - 24NC X 3/4" |
10 |
|
|
|
|
5 |
58E-06-10350
|
NUT, RIBBED - #10 - 24NC |
10 |
|
|
|
|
6 |
MM0594
|
CAPSCREW - M8 X 1.25 X 25 |
9 |
|
|
|
|
7 |
MM0470
|
LOCKWASHER - M8 |
9 |
|
|
|
|
8 |
MM0712
|
FLAT WASHER, HARDENED - M8 |
9 |
|
|
|
|
9 |
WB4006
|
NAME PLATE - VEC-90 BLOCK |
1 |
|
|
|
|
10 |
58E-06-10540
|
RETAINER, WIRE DUCT - 2" |
4 |
|
|
|
|
11 |
WB4005
|
NAME PLATE - VEC-89 BLOCK |
1 |
|
|
|
|
12 |
MM0581
|
CAPSCREW - M6 X 1.00 X 16 |
2 |
|
|
|
|
13 |
MM0459
|
FLAT WASHER - M6 |
6 |
|
|
|
|
14 |
58E-06-05680
|
BRACKET, LIGHT |
1 |
|
|
|
|
15 |
PC3010
|
LIGHT, DOME |
1 |
|
|
|
|
16 |
PC1507
|
MACHINE SCREW - #8 - 32NC X 1" |
4 |
|
|
|
|
17 |
PC1516
|
NUT - #8 - 32NC |
4 |
|
|
|
|
18 |
EC7462
|
NAME PLATE - DL1 |
1 |
|
|
|
|
19 |
SR8325
|
SWITCH, TOGGLE |
1 |
|
|
|
|
20 |
PB3324
|
BOOT, SWITCH |
1 |
|
|
|
|
21 |
WB2200
|
NAME PLATE - DLS |
1 |
|
|
|
|
22 |
58E-06-20040
|
VEHICLE ELECTRICAL CENTER, VEC-89 (SEE INDEX) |
1 |
|
43540 |
|
|
23 |
58F-06-10910
|
NAME PLATE - ORS POWER |
1 |
|
|
|
|
24 |
58E-06-04150
|
RELAY - 24V, 75 AMP |
2 |
|
|
|
|
25 |
58F-06-10920
|
NAME PLATE - ORS HEATED HOSE |
1 |
|
|
|
|
26 |
WB4007
|
NAME PLATE - VEC-91 BLOCK |
1 |
|
|
|
|
27 |
58E-06-20060
|
VEHICLE ELECTRICAL CENTER, VEC-91 (SEE INDEX) |
1 |
|
43950 |
|
|
28 |
1258403H1
|
SWITCH, TOGGLE |
1 |
|
|
|
|
29 |
58E-06-07860
|
NAME PLATE - KOMVISION SWITCH |
1 |
|
|
|
|
30 |
58E-06-01940
|
RELAY |
2 |
|
|
|
|
31 |
WB4008
|
NAME PLATE - RTMR1 BLOCK |
1 |
|
|
|
|
32 |
MM0349
|
MACHINE SCREW - M5 X 0.8 X 12 |
4 |
|
|
|
|
33 |
MM0206
|
LOCKWASHER - M5 |
4 |
|
|
|
|
34 |
MM0176
|
NUT - M6 X 1.00 |
16 |
|
|
|
|
35 |
58E-65-00060
|
RTMR - VEC BLOCK |
1 |
|
|
|
|
36 |
58E-06-02390
|
FUSE, 15 AMP |
2 |
|
|
|
|
37 |
58E-06-02610
|
FUSE - 20 AMP |
1 |
|
|
|
|
38 |
58E-06-20110
|
FUSE - 10 AMP |
1 |
|
|
|
|
39 |
58E-06-07730
|
BRACKET, RTMR |
1 |
|
|
|
|
40 |
58E-06-20050
|
VEHICLE ELECTRICAL CENTER, VEC-90 (SEE INDEX) |
1 |
|
43541 |