|
|
? |
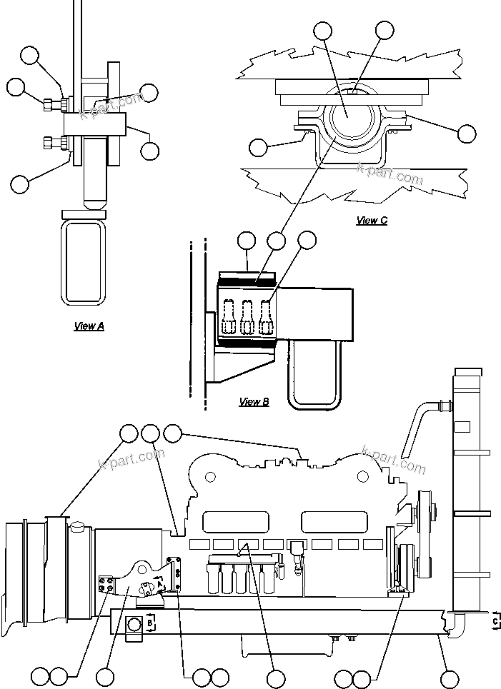
PB9266
|
ALTERNATOR BLOWER ASSEMBLY (SEE INDEX) |
1 |
|
64104A |
|
|
? |
TJ5933
|
ADAPTOR ASSEMBLY |
1 |
|
|
|
|
? |
VW5737
|
CAPSCREW - 5/8" - 11NC X 2" |
16 |
|
|
|
|
? |
VN9087
|
CAPSCREW - 5/8" - 11NC X 2 1/2" |
12 |
|
|
|
|
? |
WA0361
|
FLAT WASHER - 5/8" (HARDENED) |
28 |
|
|
|
|
? |
TM3466
|
SHIM - .004 (4 HOLE) |
4 |
|
|
|
|
? |
TM3467
|
SHIM - .004 (3 HOLE) |
4 |
|
|
|
|
? |
TM3468
|
SHIM - .007 (4 HOLE) |
4 |
|
|
|
|
? |
TM3469
|
SHIM - .007 (3 HOLE) |
4 |
|
|
|
|
? |
TW6616
|
SHIM - .010 (4 HOLE) |
12 |
|
|
|
|
? |
|
ENGINE (ORDER FROM FACTORY) |
1 |
|
|
|
|
? |
C1634
|
CAPSCREW - 5/8" - 11NC X 3" |
4 |
|
|
|
|
? |
VM6531
|
CAP, ENGINE MOUNT |
3 |
|
|
|
|
? |
C1542
|
LOCKWASHER - 3/4" |
12 |
|
|
|
|
? |
TM1312
|
PIN, PIVOT |
1 |
|
|
|
|
? |
VM3891
|
BUSHING, RUBBER |
3 |
|
|
|
|
? |
E1473
|
CAPSCREW - 1 1/4" - 7NC X 2 1/2" |
2 |
|
|
|
|
? |
EK0163
|
SUB-FRAME |
1 |
|
|
|
|
? |
TD8516
|
CAPSCREW - 3/4" - 10NC X 3 1/4" |
2 |
|
|
|
|
? |
TG7742
|
FITTING, TUBE |
1 |
|
|
|
|
? |
EH7917
|
CRADLE - R.H. |
1 |
|
|
|
|
? |
EH7918
|
CRADLE - L.H. |
1 |
|
|
|
|
? |
VN9077
|
CAPSCREW - 3/4" - 10NC X 2 1/4" |
10 |
|
|
|
|
? |
VN9079
|
CAPSCREW - 1" - 8NC X 2 1/4" |
8 |
|
|
|
|
? |
C1544
|
LOCKWASHER - 1" |
8 |
|
|
|
|
? |
E4477
|
CAPSCREW - 3/4" - 10NC X 1.34" |
18 |
|
|
|
|
? |
PB4177
|
RACE, INNER |
2 |
|
|
|
|
? |
EB8048
|
PLATE |
2 |
|
|
|
|
? |
E5222
|
JAM NUT - 3/4" - 10NC |
4 |
|
|
|
|
? |
VW2236
|
SET SCREW - 3/4" - 10NC X 3" |
4 |
|
|
|
|
? |
TN1019
|
PIN |
2 |
|
|
|
|
? |
|
NOTE: NS = NOT SHOWN |
-1 |
|
|
|
|
? |
VS7692
|
ELEMENT, ENGINE LUBE OIL FILTER |
5 |
|
|
|
|
? |
XA2129
|
ELEMENT, WATER CORROSION RESISTOR |
2 |
|
|