|
|
? |
TD1548
|
CAPSCREW - 1/4" - 20NC X 5/8" |
4 |
|
|
|
|
? |
SP8417
|
FLAT WASHER - 1/4" |
4 |
|
|
|
|
? |
DC3584
|
LOCKWASHER - 1/4" (ZINC) |
4 |
|
|
|
|
? |
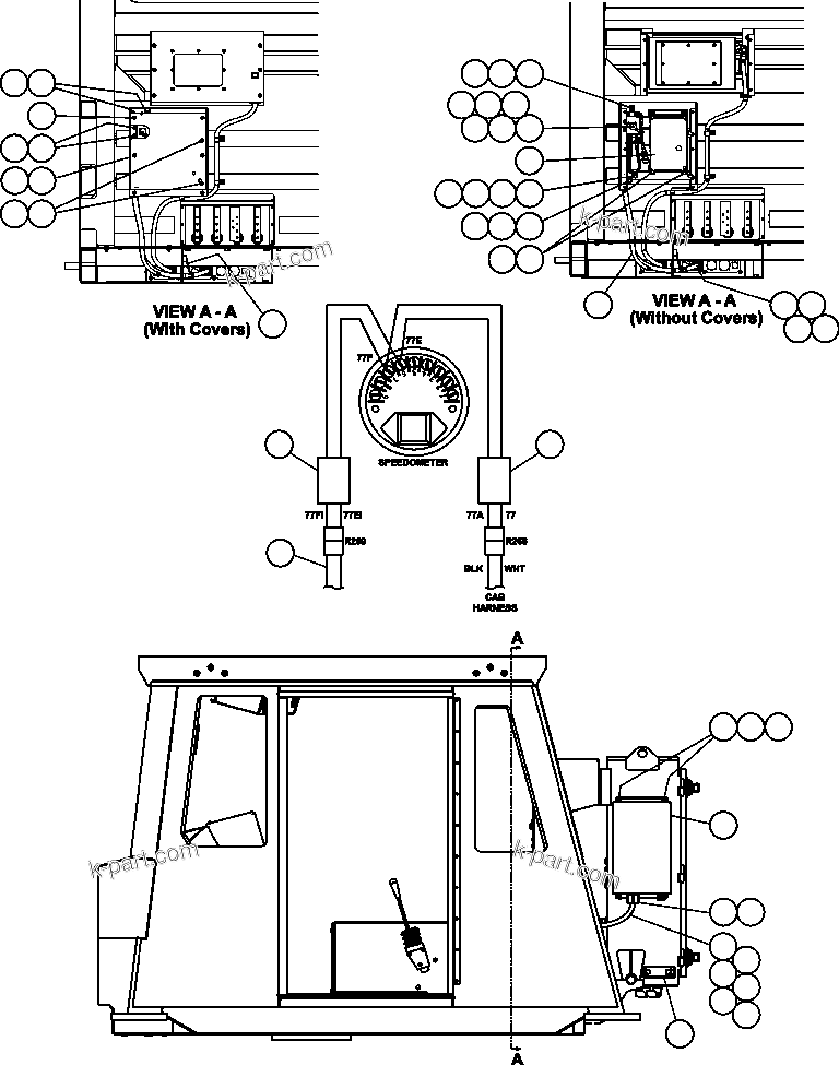
EL4788
|
BOX, JUNCTION (SEE INDEX) |
1 |
|
55739 |
|
|
? |
WB0983
|
GRIP, CORD |
1 |
|
|
|
|
? |
VZ2691
|
LOCKNUT, CONDULET - 1 1/4" |
1 |
|
|
|
|
? |
EK7638
|
HARNESS, CAB/JUNCTION BOX |
1 |
|
|
|
|
? |
TC1565
|
CLAMP, VINYL - 15/16" |
5 |
|
|
|
|
? |
VN9907
|
CLAMP, VINYL - 5/8" |
3 |
|
|
|
|
? |
MM0461
|
FLAT WASHER - M10 |
3 |
|
|
|
|
? |
MM0471
|
LOCKWASHER - M10 |
3 |
|
|
|
|
? |
MM0178
|
NUT - M10 X 1.50 |
3 |
|
|
|
|
? |
WA5460
|
CLAMP, HEAVY DUTY |
1 |
|
|
|
|
? |
EJ4037
|
COVER, PLATE CONNECTOR HOLE |
1 |
|
|
|
|
? |
PB9829
|
SCREW, PAN - M6 X 1.00 X 16 |
12 |
|
|
|
|
? |
SM6073
|
PLATE, CONNECTOR |
1 |
|
|
|
|
? |
SM6068
|
PLATE, MOUNTING |
1 |
|
|
|
|
? |
SM6066
|
COVER, BENT PLATE |
1 |
|
|
|
|
? |
|
(NOT USED THIS APPLICATION) |
-1 |
|
|
|
|
? |
MM0580
|
CAPSCREW - M6 X 1.00 X 14 |
3 |
|
|
|
|
? |
MM0016
|
CAPSCREW - M8 X 1.25 X 16 |
2 |
|
|
|
|
? |
MM0460
|
FLAT WASHER - M8 |
2 |
|
|
|
|
? |
PB9862
|
CAP, PROTECTIVE METAL |
1 |
|
|
|
|
? |
SM2117
|
PLATE, NUT CONNECTOR |
1 |
|
|
|
|
? |
WA5641
|
SCREW, MACHINE - #4 - 40NC X 3/8" |
4 |
|
|
|
|
? |
SF0542
|
SCREW, MACHINE - #4 - 40NC X 5/16" |
1 |
|
|
|
|
? |
VD7129
|
LOCKWASHER - #4 |
1 |
|
|
|
|
? |
VN9717
|
NUT - #4 - 40NC |
1 |
|
|
|
|
? |
EJ3060
|
PAYLOAD METER III ASSEMBLY |
1 |
|
|
|
|
? |
VC8762
|
CAPSCREW - 3/8" - 16NC X 1 1/2" |
4 |
|
|
|
|
? |
TR4436
|
FLAT WASHER - 3/8" |
4 |
|
|
|
|
? |
TC1231
|
LOCKWASHER - 3/8" |
4 |
|
|
|
|
? |
SM5049
|
NUT, SPRING - 3/8" - 16NC |
4 |
|
|
|
|
? |
MM0401
|
CAPSCREW - M8 X 1.25 X 90 |
4 |
|
|
|
|
? |
MM0703
|
FLAT WASHER - M8 |
4 |
|
|
|
|
? |
VZ1368
|
GRIP, CORD |
1 |
|
|
|
|
? |
EJ4036
|
ADAPTER |
1 |
|
|
|
|
? |
SM0724
|
GASKET |
1 |
|
|
|
|
? |
WA5643
|
SCREW, MACHINE |
4 |
|
|
|
|
? |
EJ9252
|
ADAPTER, SPEEDOMETER/CAB HARNESS |
1 |
|
|
|
|
? |
EK7639
|
ATTENUATOR ASSEMBLY |
1 |
|
|