Search in all models by partnumber
Search current book

Komatsu AFE48-AU 930E-2 S/N A30098 & A30100 BARRICK parts catalog PDF

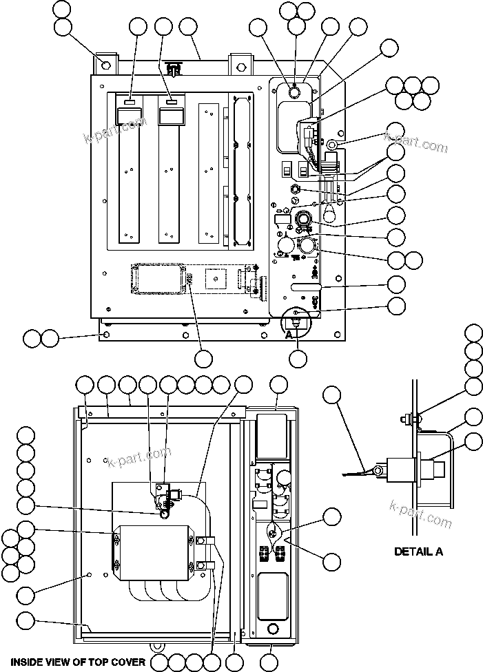
CAB INTERFACE COMPARTMENT (60267) in AFE48-AU 930E-2 S/N A30098 & A30100 BARRICK. Diagram image and parts list.

Model manual types and quick links