|
|
? |
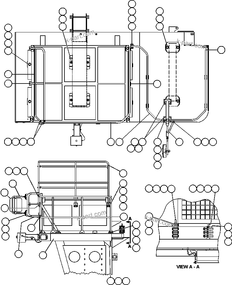
EJ5424
|
DECK - R.H. |
1 |
|
|
|
|
? |
EG1064
|
HANDRAIL, FRONT |
1 |
|
|
|
|
? |
EG0646
|
HANDRAIL, REAR/FORWARD |
1 |
|
|
|
|
? |
PB7490
|
ARM BOW ASSEMBLY - R.H. (SEE FIG 60029) |
1 |
|
60029 |
|
|
? |
PB7491
|
CONVEX MIRROR ASSEMBLY - R.H. (SEE FIG 60029) |
1 |
|
60029 |
|
|
? |
MM0460
|
FLAT WASHER - M8 |
4 |
|
|
|
|
? |
MM0470
|
LOCKWASHER - M8 |
4 |
|
|
|
|
? |
MM0594
|
CAPSCREW - M8 X 1.25 X 25 |
4 |
|
|
|
|
? |
VC7836
|
FLAT WASHER - 1/2" |
12 |
|
|
|
|
? |
TR5445
|
LOCKWASHER - 1/2" |
12 |
|
|
|
|
? |
TR1376
|
CAPSCREW - 1/2" - 13NC X 1 1/4" |
4 |
|
|
|
|
? |
VC6561
|
CAPSCREW - 1/2" - 13NC X 1 1/2" |
8 |
|
|
|
|
? |
EG0617
|
PLATE, THREADED |
4 |
|
|
|
|
? |
MM0462
|
FLAT WASHER - M12 |
28 |
|
|
|
|
? |
MM0472
|
LOCKWASHER - M12 |
24 |
|
|
|
|
? |
MM0617
|
CAPSCREW - M12 X 1.75 X 25 |
20 |
|
|
|
|
? |
ED6111
|
PLATE, THREADED |
6 |
|
|
|
|
? |
ED6112
|
PLATE, THREADED |
2 |
|
|
|
|
? |
EG0627
|
HANDRAIL, FRONT/BACKSIDE |
1 |
|
|
|
|
? |
EC7594
|
FLAT WASHER |
16 |
|
|
|
|
? |
MM0091
|
CAPSCREW - M20 X 2.50 X 80 |
5 |
|
|
|
|
? |
MM0085
|
CAPSCREW - M20 X 2.50 X 70 |
3 |
|
|
|
|
? |
MM0697
|
LOCKNUT - M20 X 2.50 |
8 |
|
|
|
|
? |
MM0619
|
CAPSCREW - M12 X 1.75 X 35 |
4 |
|
|
|
|
? |
MM0179
|
NUT - M12 X 1.75 |
4 |
|
|
|
|
? |
EG0622
|
HANDRAIL, REAR |
1 |
|
|
|
|
? |
01643-32060
|
FLAT WASHER |
8 |
|
|
|
|
? |
MM0475
|
LOCKWASHER - M20 |
4 |
|
|
|
|
? |
MM0168
|
CAPSCREW - M20 X 2.50 X 180 |
4 |
|
|
|
|
? |
MM0182
|
NUT - M20 X 2.50 |
4 |
|
|
|
|
? |
EG8054
|
MOUNT, MIRROR |
1 |
|
|
|
|
? |
EB4395
|
BRACE |
1 |
|
|
|
|
? |
C1605
|
CAPSCREW - 3/8" - 16NC X 1 3/4" |
2 |
|
|
|
|
? |
WA4726
|
FLAT WASHER - 3/8" |
2 |
|
|
|
|
? |
HE5611
|
LOCKNUT - 3/8" - 16NC |
2 |
|
|
|
|
? |
TJ6978
|
BRACKET |
1 |
|
|
|
|
? |
ED6011
|
TUBE, SUPPORT |
1 |
|
|
|
|
? |
EJ2443
|
BRACKET |
1 |
|
|
|
|
? |
EC7589
|
PLATE |
1 |
|
|
|
|
? |
D104556
|
BUMPER |
1 |
|
|
|
|
? |
TR4731
|
CAPSCREW - 5/16" - 18NC X 1" |
8 |
|
|
|
|
? |
SC4174
|
LOCKWASHER - 5/16" |
8 |
|
|
|
|
? |
TV0177
|
FLAT WASHER - 5/16" |
8 |
|
|
|
|
? |
VN5529
|
CLEAT, CABLE |
14 |
|
|
|
|
? |
VA0609
|
SPACER |
5 |
|
|
|
|
? |
TN2590
|
HOSE, SPACER |
14 |
|
|
|
|
? |
EC1091
|
STUD, THREADED |
1 |
|
|
|
|
? |
WA4863
|
FLAT WASHER - 5/8" |
2 |
|
|
|
|
? |
VC1390
|
LOCKWASHER - 5/8" |
2 |
|
|
|
|
? |
MM0181
|
NUT - M6 X 2.00 |
2 |
|
|
|
|
? |
EC1090
|
STUD, THREADED |
1 |
|
|