|
|
? |
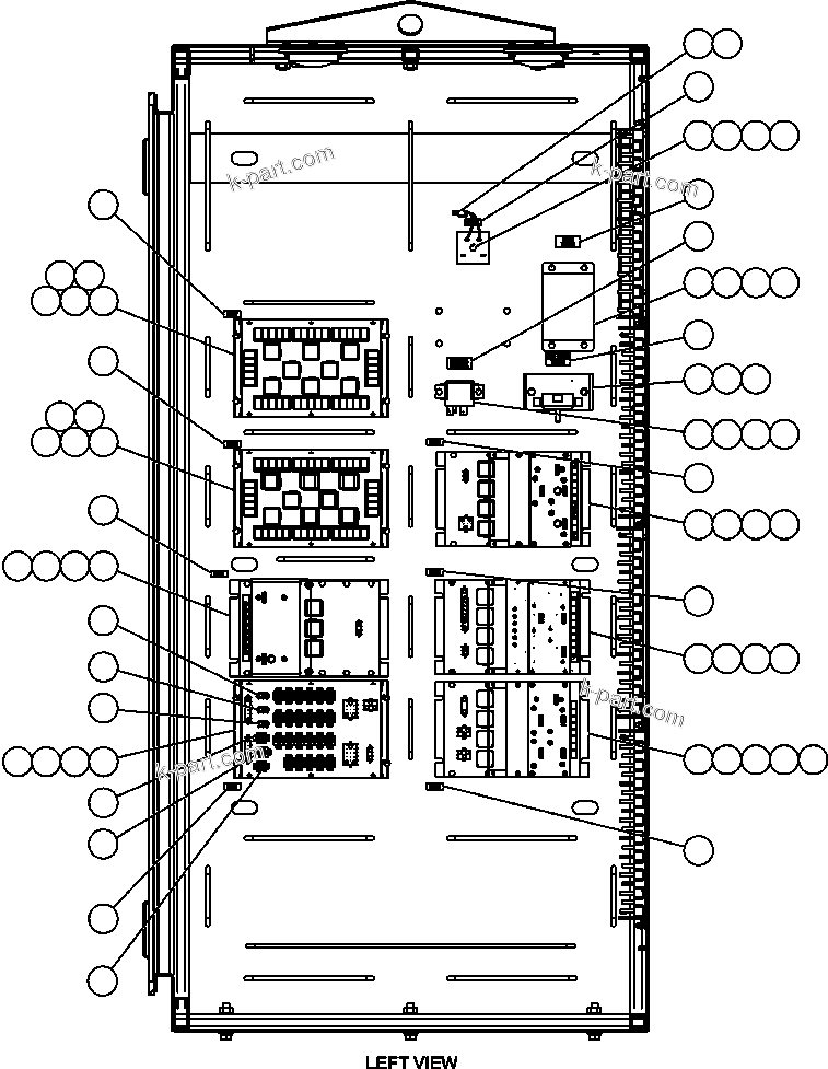
WB2281
|
NAME PLATE - LUBE TIMER |
1 |
|
|
|
|
? |
WB2289
|
NAME PLATE - CONTROL POWER RELAY |
1 |
|
|
|
|
? |
PC0337
|
TIMER - 24 VOLT |
1 |
|
|
|
|
? |
MM0459
|
FLAT WASHER - M6 |
33 |
|
|
|
|
? |
MM0379
|
LOCKWASHER - M5 (EXTERNAL TOOTH) |
32 |
|
|
|
|
? |
MM0373
|
NUT - M5 |
33 |
|
|
|
|
? |
WB2282
|
NAME PLATE - BAR PRESS TRANS |
1 |
|
|
|
|
? |
PB7276
|
RELAY - 50 AMP |
1 |
|
|
|
|
? |
PB9744
|
TRANSDUCER, PRESSURE |
1 |
|
|
|
|
? |
MM0207
|
LOCKWASHER - M6 |
2 |
|
|
|
|
? |
MM0176
|
NUT - M6 X 1.00 |
2 |
|
|
|
|
? |
EC8821
|
NAME PLATE - RB3 |
1 |
|
|
|
|
? |
EK3803
|
BOARD, RELAY - RB3 (SEE FIG 55612) |
1 |
|
55612 |
|
|
? |
EC8822
|
NAME PLATE - RB4 |
1 |
|
|
|
|
? |
EK3806
|
BOARD, RELAY - RB4 (SEE FIG 55612) |
1 |
|
55612 |
|
|
? |
EK3811
|
BOARD, RELAY - RB5 (SEE FIG 55612) |
1 |
|
55612 |
|
|
? |
EC8823
|
NAME PLATE - RB5 |
1 |
|
|
|
|
? |
EC8825
|
NAME PLATE - DB1 |
1 |
|
|
|
|
? |
EK4993
|
BOARD, DIODE - DB1 (SEE FIG 55613) |
1 |
|
55613 |
|
|
? |
EG0664
|
RESISTOR - 270 OHM |
1 |
|
|
|
|
? |
SM3124
|
DIODE |
1 |
|
|
|
|
? |
EG8333
|
RESISTOR - 20 OHM |
1 |
|
|
|
|
? |
EH7284
|
RESISTOR/CAPACITOR |
1 |
|
|
|
|
? |
EH7285
|
RESISTOR |
1 |
|
|
|
|
? |
EH7286
|
RESISTOR |
1 |
|
|
|
|
? |
EK3808
|
BOARD, RELAY - RB1 (SEE FIG 55612) |
1 |
|
55612 |
|
|
? |
EC8819
|
NAME PLATE - RB1 |
1 |
|
|
|
|
? |
EK4991
|
BOARD, RELAY - RB6/RB7 (SEE FIG 55613) |
2 |
|
55613 |
|
|
? |
SM3189
|
RELAY |
16 |
|
|
|
|
? |
EC8824
|
NAME PLATE - RB6 |
1 |
|
|
|
|
? |
WB2280
|
NAME PLATE - RB7 |
1 |
|
|
|
|
? |
EG2362
|
RESISTOR |
1 |
|
|
|
|
? |
EG2363
|
HOUSING |
1 |
|
|
|
|
? |
WB2819
|
NAME PLATE - LLDT |
1 |
|
|
|
|
? |
PB9972
|
TIMER |
1 |
|
|
|
|
? |
MM0469
|
LOCKWASHER - M6 |
1 |
|
|
|
|
? |
EJ8332
|
HARNESS, L/R DECK HEAD LIGHTING |
1 |
|
|