|
|
? |
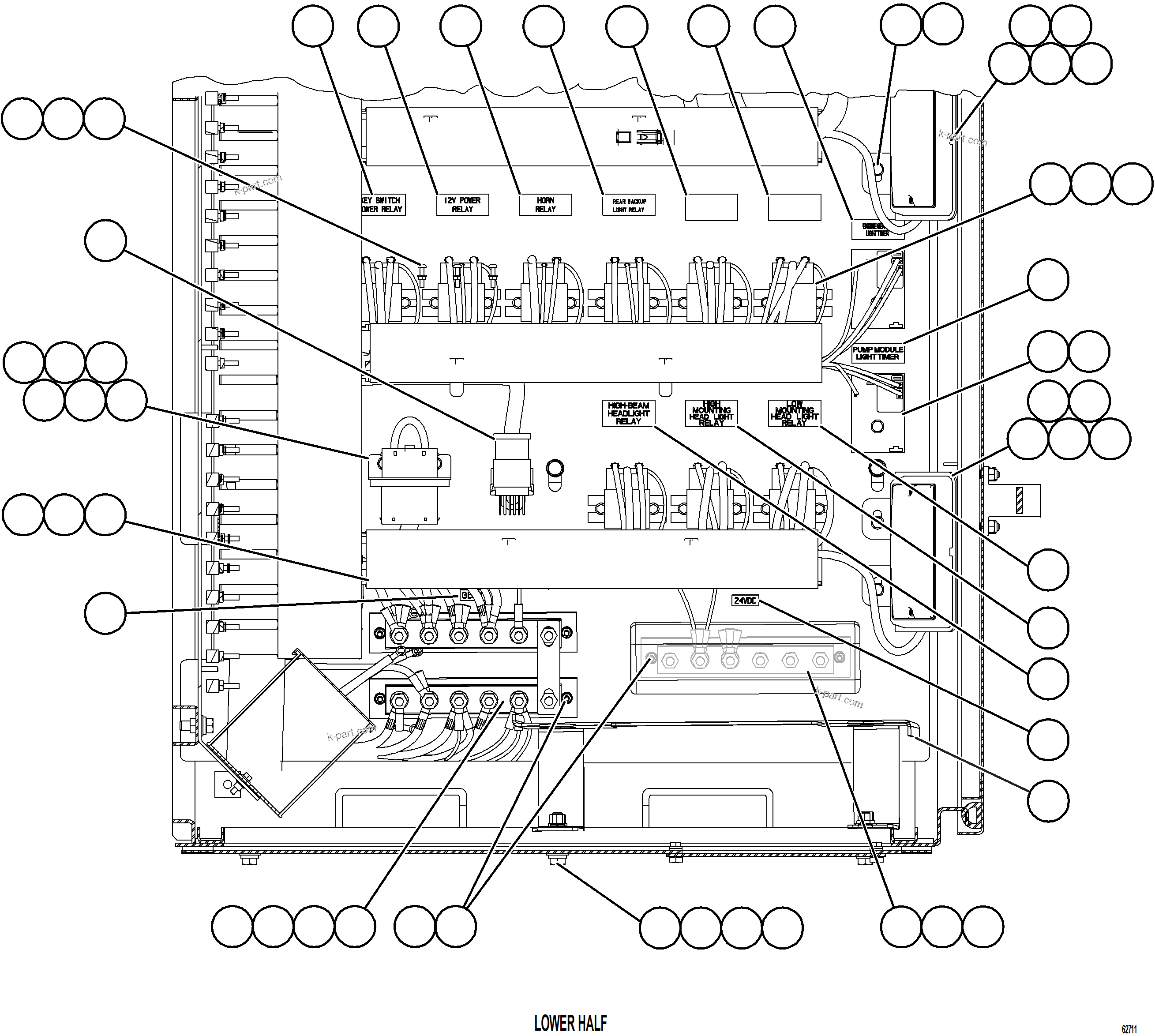
58E-06-00060
|
BRACKET |
1 |
|
|
|
|
? |
58E-06-10360
|
SCREW, FLANGE |
39 |
|
|
|
|
? |
58E-06-10350
|
NUT, SPECIAL |
39 |
|
|
|
|
? |
58E-06-00570
|
HARNESS, AHT PLUG2 |
1 |
|
|
|
|
? |
MM0581
|
CAPSCREW - M6 X 1.00 X 16 |
12 |
|
|
|
|
? |
MM0459
|
FLAT WASHER - M6 |
24 |
|
|
|
|
? |
WB2835
|
NAME PLATE - KEY SWITCH POWER RELAY |
1 |
|
|
|
|
? |
WB2836
|
NAME PLATE - 12V POWER RELAY |
1 |
|
|
|
|
? |
WB3731
|
NAME PLATE - HORN RELAY |
1 |
|
|
|
|
? |
WB3879
|
NAME PLATE - REAR BACKUP LIGHT RELAY |
1 |
|
|
|
|
? |
WB4000
|
NAME PLATE - KEY CONTROL POWER RELAY |
1 |
|
|
|
|
? |
WB4004
|
NAME PLATE - LADDER DECK LIGHT RELAY |
1 |
|
|
|
|
? |
WB3521
|
NAME PLATE - EMT |
1 |
|
|
|
|
? |
PC1507
|
MACHINE SCREW - #8 - 32NC X 1" |
8 |
|
|
|
|
? |
PC1516
|
NUT - #8 - 32NC |
8 |
|
|
|
|
? |
XC2504
|
BRACKET, LIGHT |
2 |
|
|
|
|
? |
EC7458
|
NAME PLATE - DL2 |
1 |
|
|
|
|
? |
PC3010
|
LIGHT, DOME |
2 |
|
|
|
|
? |
58E-06-04150
|
RELAY - 24V, 75 AMP |
9 |
|
|
|
|
? |
WB3522
|
NAME PLATE - PMT |
1 |
|
|
|
|
? |
WB4001
|
NAME PLATE - LOW MOUNTING HEADLIGHT RELAY |
1 |
|
|
|
|
? |
WB4002
|
NAME PLATE - HIGH MOUNTING HEADLIGHT RELAY |
1 |
|
|
|
|
? |
WB4003
|
NAME PLATE - HIGH BEAM HEADLIGHT RELAY |
1 |
|
|
|
|
? |
EC7459
|
NAME PLATE - DL3 |
1 |
|
|
|
|
? |
TD0789
|
CAPSCREW - 3/8" - 16NC X 1 3/4" |
6 |
|
|
|
|
? |
TC1231
|
LOCKWASHER - 3/8" |
26 |
|
|
|
|
? |
TR4436
|
FLAT WASHER - 3/8" |
6 |
|
|
|
|
? |
TC1233
|
NUT - 3/8" - 16NC |
6 |
|
|
|
|
? |
58E-06-30050
|
BUS BAR |
3 |
|
|
|
|
? |
F0042
|
SCREW, MACHINE - #10 - 24NC X 1" |
6 |
|
|
|
|
? |
58E-06-30070
|
BUS BAR |
1 |
|
|
|
|
? |
WB3104
|
FLAT WASHER - M5 |
6 |
|
|
|
|
? |
MM0373
|
NUT - M5 X 0.8 |
6 |
|
|
|
|
? |
58E-06-30060
|
COVER, BUS BAR |
1 |
|
|
|
|
? |
WB2303
|
NAME PLATE - GB31 |
1 |
|
|
|
|
? |
TZ7377
|
NAME PLATE - 24VDC |
1 |
|
|
|
|
? |
58E-06-00410
|
COVER, WIRE |
3 |
|
|
|
|
? |
58E-06-00390
|
DUCT, WIRE |
3 |
|
|
|
|
? |
58E-06-10540
|
RETAINER, WIRE DUCT - 2" |
6 |
|
|
|
|
? |
XC2803
|
CONNECTOR |
1 |
|
|
|
|
? |
PC2644
|
TIMER, 2 HR DELAY |
2 |
|
|
|
|
? |
MM0585
|
CAPSCREW - M6 X 1.00 X 35 |
2 |
|
|
|
|
? |
58E-06-02030
|
PLATE, FLOOR |
1 |
|
|
|
|
? |
MM0344
|
SCREW - M4 X 0.7 |
4 |
|
|
|
|
? |
MM0378
|
LOCKWASHER - M4 |
4 |
|
|
|
|
? |
MM0372
|
NUT - M4 X 0.7 |
4 |
|
|